Till innehållet
Moelven OMTDW6
Moelven OMTDW6
Art.nr: 932432

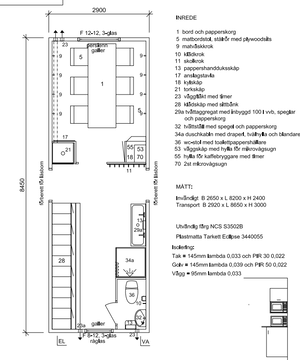
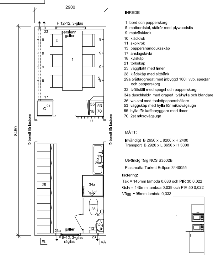
Personalbod OMTDW6, omkl, mat, tvätt, dusch, WC

Teknisk information

Höjd:
3 000 mm
Längd:
8 650 mm
Bredd:
2 920 mm
Max antal personer:
6

När du hyr från oss så kan du få en maskin från olika fabrikat. Men de är såklart likvärdiga när det gäller specifikationer. Välj i dropplistan om du vill se info om en viss modell.

Dokument

  • Inga dokument tillgängliga

Filmer

  • Inga filmer tillgängliga

Hyrkorgen

Våra depåer