Till innehållet
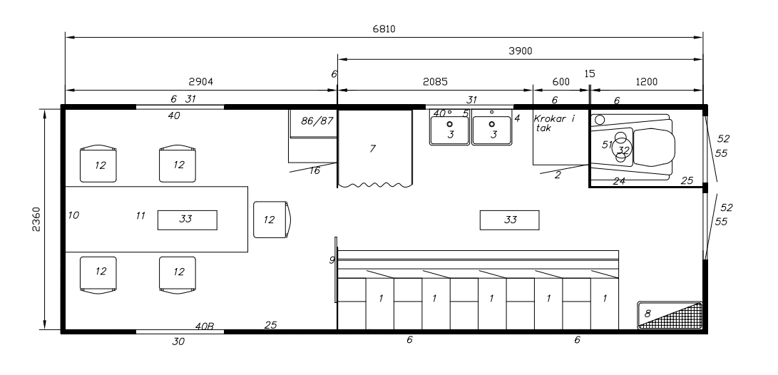
Arbetsvagnar PVTD5
Art.nr: 935154

Personalvagn, PVTD-5, el, gasol, matrum, slamtoalett

Teknisk information

Längd:
6 810 mm
Bredd:
2 350 mm
Max antal personer:
5

När du hyr från oss så kan du få en maskin från olika fabrikat. Men de är såklart likvärdiga när det gäller specifikationer. Välj i dropplistan om du vill se info om en viss modell.

Dokument

  • Inga dokument tillgängliga

Filmer

  • Inga filmer tillgängliga

Hyrkorgen

Våra depåer